| BARUCCOPFEIFER ARCHITEKTUR. |
|
I PHILOSOPHIE I AKTUELL I BAUTEN I FORSCHUNG I WETTBEWERBE I PUBLIKATIONEN I VORTRÄGE I INFO I WEIHERSCHLOSS I BRÜHL I SOZ. WOHNUNGSBAU I RHEINFELDEN I LIEBFRAUENKIRCHE I BADEHAUS |
〉
〈
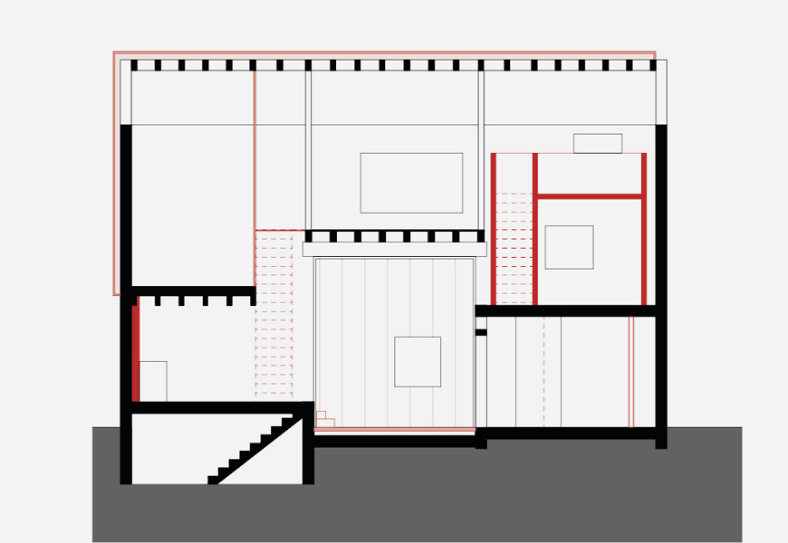
![]() Grundriss Ebene 1![]() Grundriss Ebene 2![]() Längsschnitt![]() Querschnitt![]() Energieschema |
|
UMBAU EINER SCHEUNE ZU EINEM WOHNHAUS
|
I FOTOS |
|
Die bestehende Scheune ist ein dankbares Objekt für ein großzügiges Einraumloft. Wenn man die Dreierteilung und das räumliche Potential dieses landwirtschaftlichen Zweckgebäudes unter einfachsten Bedingungen nutzen will, muss ausreichende Wohnphantasie mitgebracht werden. Eine lange Treppe mit einem Zwischenpodest erschließt alle Ebenen. Die Südseite erhält im Obergeschoss einen Energiegarten, der ein wesentlicher Teil desenergetischen Konzeptes ist. Die Tenne wird der große Essraum, an dem die Küche angeschlossen ist. Im Obergeschoss darüber kann ein ebenso großer
Aufenthaltsraum als Wohnzimmer dienen. Der Bereich auf der Nordseite der Scheune erhält einen zweigeschossigen Einbau aus einer Holzkonstruktion, der zunächst einen Schlafbereich mit Bad erhält. Die darüber liegende Ebene dient als weitere Ausbaufläche
für ein Kinderzimmer. Das grundsätzliche Prinzip dieses Projektes ist es, mit möglichst reduktiven Eingriffen den räumlichen Reiz der Räume zu erhalten. Das bezieht auch die vorhandene Materialität mit ein. Die großen Öffnungen des Scheunentores auf beiden Seiten des Gebäudes bleiben in der mächtigen Dimension erhalten und werden zu großen lichten Kastenfenstern in Holzkonstruktion mit einer transluzenten Polycarbonatplattenverkleidung umgestaltet. Der Eingang ins Gebäude wird auf die Westseite in den ehemaligen Stall verlegt. Die Tenne wird im Erdgeschoss zur großzügigen Wohnhalle, von der sich das Obergeschoss erschließt. Die Durchdringung der ehemaligen versetzten Ebenen des Heulagers wird erhalten und sichtbar bleiben. Auf der Südseite wird in der Zwischenebene ein Energiegarten platziert, der mit einem neuen großen Südfenster eine lichte Durchdringung in die Tiefe der Tenne ergibt. Im Obergeschoss bleibt die Konstruktion ablesbar und wird damit zum räumlichen Ordnungsfaktor. Die Böden werden ebenfalls in ihrer Authentizität erhalten. Lediglich der Tennenboden wird als Hypokauste neu konstruiert und mit einfachen Betonplatten
belegt. Das Energiekonzept unterstützt das Materialkonzept und den offenen räumlichen Zusammenhang.
|
In der Nähe von Mannheim
Projekt 2014 Bauherr: Privat Architekten: BARUCCOPFEIFER ARCHITEKTUR. Darmstadt Fotos: © Claudius Pfeifer, Berlin |
|
|
|
|
I IMPRESSUM I DATENSCHUTZ I © 2019 BARUCCOPFEIFER ARCHITEKTUR.
|