Die großzügige fächerförmige Anlage der Gartenstadt Haslach mit ca. 450 Häusern wurde in den 1920er Jahren nach Entwürfen des städtischen Hochbauamtes unter Leitung von Joseph Schlippe und dem Architekten Karl Gruber geplant und gebaut. Die Einfamilien-Reihenhaus-Bauweise mit den tiefen Vorgärten war zur damaligen Zeit ein großer Fortschritt in der städtischen Wohnkultur. Als Vorbild für diese Gartenstadt galt das von Ebenezer Howard entwickelte Modell der englischen Gartenstädte. Die Gartenstadt ist in allen Teilen - Straßenführung und Straßenprofile, sowie die Haustypen mit ihren Eigenarten - erhalten geblieben und wurde deshalb zum Kulturdenkmal erklärt. Mit der zunehmenden Privatisierung der Gartenstadthäuser gehen bauliche Änderungswünsche an den Häusern einher. Neben dem Wunsch, die kleinen Häuser durch Wohnraum-erweiterungen attraktiver und zeitgemäßer zu gestalten, besteht ein besonderer Druck, die Gebäude auch energetisch zu ertüchtigen. Die EnEV ist strukturell auf der Minimierung von Energieverlusten aufgebaut. Das führt zu einer Strategie der Rundumdämmung und -dichtung der Gebäude, die entweder außen oder in besonderen Fällen auch auf der Innenseite vorgenommen wird. Das Gegenmodell lautet: Energiegewinne maximieren. Diese Methode ist weniger bekannt und planungstechnisch erheblich aufwändiger. Sie geht davon aus, dass Fenster, Wände und Dächer so konstruiert werden, dass solare Energiegewinne direkt und mit wenig technischem Aufwand verwertet werden können. Diese Methoden sind weitaus planungsaufwändiger und benötigen vor allem eine exakte Berechnung der Energiegewinne, der Energiespeicherung und der Energieentladung (Schutz gegen sommerliche Überwärmung). Diese Berechnungen werden in Form thermodynamischer Simulationen durchgeführt und schrittweise mit den erforderlichen Planungskonzepten abgestimmt und optimiert. Die Einzelmaßnahmen werden jeweils spezifisch für das Gebäude entwickelt.
Nach mehreren Arbeitsschritten und Modellberechnungen wurde folgendes Konzept gewählt:
- Luftkollektoren im Dachfirst blasen solar erwärmte Luft direkt in die Räume der drei Geschosse ein.
- Die Prozessenergien im Gebäude werden im Treppenhaus gesammelt und über eine
Wärmerückgewinnungsanlage zurück in den Luftraum der Außenwände geleitet.
- Die Fenster wurden erneuert (normales Isolierglas U-Wert 1,1).
- Das Dach wurde unter Beibehaltung der alten Dachdeckung nachgedämmt.
- Das Kellergeschoss wurde so abgetrennt, dass im Zusammenhang mit den neuen
Fußböden
ebenfalls eine Dämmung erfolgt.
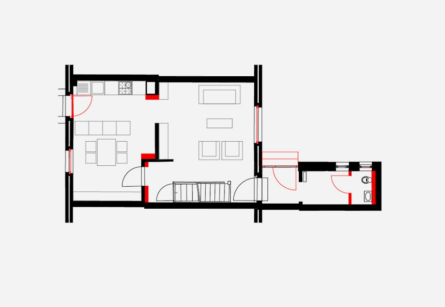
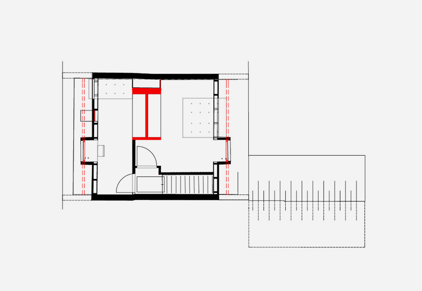
Mit diesen Maßnahmen können Energiekennzahlen von ca. 40 kWh/qm/a erreicht werden. Für die Sanierung der Gartenstadt Haslach ist dies die ideale Methode, denn mit dem Verzicht auf eine äußere Dämmung wird die sichtbare Veränderung des äußeren Erscheinungsbildes vermieden. Das dafür ausgesuchte Referenzhaus in der Freiligrathstraße 70 erhält einen modifizierten Grundriss mit einem Bad im 1. Obergeschoss sowie zwei gleichwertigen Zimmern im Dachgeschoss. Im Erdgeschoss wurde mit wenigen Eingriffen ein großzügiger Wohn-Essraum mit offener Küche errichtet.




