| BARUCCOPFEIFER ARCHITEKTUR. |
|
I PHILOSOPHIE I AKTUELL I BAUTEN I PROJEKTE I FORSCHUNG I PUBLIKATIONEN I VORTRÄGE I INFO I SENIORENWOHNEN I MOSCHEE I CHRISTUSKIRCHE I TOWN HALL PRAGUE |
〉
〈
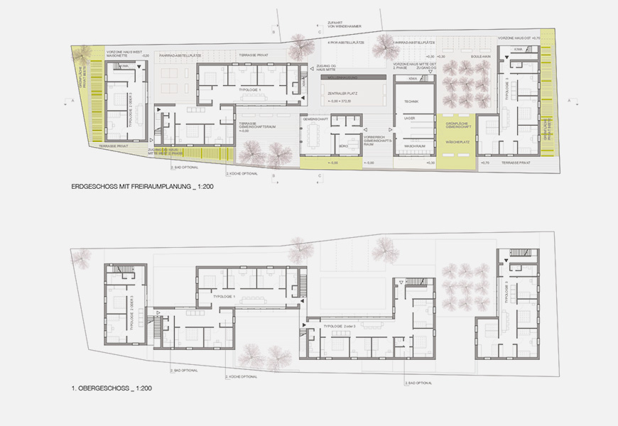
![]() Lageplan![]() Grundrisse Ergeschoss und Obergeschoss![]() Grundrisse Nachnutzung Sozialer Wohnungsbau![]() Ansicht Nord und Schnitt |
|
ANSCHLUSSUNTERBRINGUNG GARTENSTRASSE, KIRCHZARTEN
|
I FOTOS |
|
Kleine, aneinandergefügte, zweigeschossige Baukörper bilden eine homogene Gruppensiedlung, die den Ortsrand von Zarten räumlich abschließt. Die kohärenten Gestaltungsprinzipien dieser Gebäudeanordnung mit den differenzierten Freiraumnutzungen sind Ausdruck der gesellschaftlich ersehnten Willkommenskultur und Integration. Sie bilden eine Art Komplementär zur Gestaltungs-Individualität der Siedlungsstruktur. Die Qualität der Siedlung mit Höfen und Plätzen unterschiedlicher Orientierungen und Intimitäten entsteht über die Anordnung und Proportion der Baukörper und den verschiedenen Durchgängen und Verbindungen. Aufenthaltsqualität innerhalb des kleinen Quartieres führt zur Identifikation und erleichtert ein "Ankommen".
Die räumliche Differenzierung der Gebäudevolumen ergibt unterschiedlich geformte und belichtete Freiräume, die mit einer Mehrfachbelegung nutzbar gemacht werden können. So ergeben sich ein Eingangs- und Gemeinschaftshof, ein Hof als Platz unter Bäumen, Grün- und Hofflächen zwischen den Gebäuden als Terrasse der Gemeinschaft und ein Hof für verschiedenartige Spielaktivitäten wie Tischtennis sowie unterschiedliche Wegeverbindungen und Durchgänge. Die öffentliche Topografie wird über eine Auswahl von ortstypischen Hecken und standortgerechten Pflanzen lesbar gemacht. Die divergenten Nutzungen werden ergänzt von privaten Grünflächen vor den Häusern. Wassergebundene Flächen, Holzdecks, Rasenflächen und private Beete bilden ebenso wie die Wegebefestigungen aus großflächigen Betonplatten die Oberflächen der Freiflächen. Gemeinsamer Nenner sind qualitative Ziele, die von allen Beteiligten als atmosphärische Vision eines guten Lebens verstanden werden und deren Poesie in der Planung und Realisierung nicht verleugnet wird.
|
79199 Kirchzarten
Einladungswettbewerb 2016 Architekten: BARUCCOPFEIFER ARCHITEKTUR. Darmstadt Mitarbeit: Dipl.-Ing. Ruzica Mikolic |
|
|
|
|
I IMPRESSUM I DATENSCHUTZ I © 2023 BARUCCOPFEIFER ARCHITEKTUR.
|